欢迎光临上海连仪仪表有限公司!主营产品:仪器仪表
    免责申明 | 网站地图
电磁流量计、金属管转子流量计、磁翻板液位计
专注工业自动化仪器仪表、成套集成系统

压力、温度、流量、液位、阀门、逻辑开关

咨询服务热线021-66875077
热门关键词:

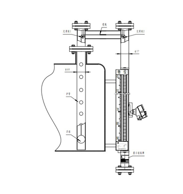
UHZ-57/S绳式磁性液位计

  • 质量稳定:实行全过程质量监控,细致入微,*********检测!
  • 价格合理:有效内部成本控制,减少了开支,让利于客户!
  • 交货快捷:xj****生产流水线,充足的备货,缩短了交货期!

电 话:021-66875077 17316332559

传 真:021-66875077

QQ:2433513866

邮 箱:shlyyb@126.com

  • /upload/images/201702/14878524030911.jpg

介绍

产品描述

    UHZ-57/S绳式磁性液位计是利用浮球、滑轮和钢索组合成的现场液位检测仪表,它的浮球放在被测量的罐或容器内,通过钢索及滑轮机构将罐或容器内的液位上下变化的位移传递到安装在罐或容器外的测量指示端,利用磁耦合原理,使液位的变化变成对应的红白翻柱的变化,从而显示罐或容器内的液位值。测量时液体介质和指示器******隔离,对检测安全可靠。
结构原理

    绳式磁性液位计是利用浮球、滑轮和钢索组合成的现场液位检测仪表,它的浮球放在被测量的罐或容器内,通过钢索及滑轮机构将罐或容器内的液位上下变化的位移传递到安装在罐或容器外的测量指示端,利用磁耦合原理,使液位的变化变成对应的红白翻柱的变化,从而显示罐或容器内的液位值。测量时液体介质和指示器******隔离,对检测安全可靠。

产品参数

    测量精度: ±1cm 

    测量范围: 0~6000mm 

    介质密度:≥0.45g/cm3 

    介质粘度:≤0.02Pa.S>(介质工作温度下) 

    工作温度:10℃ <t≤ 80℃ 

    工作压力:开口常压 

    连接法兰尺寸: DN80,DN10


相关内容

relatedcontent

  • 23

    2017-02

    UHZ-57/S绳式磁性液位计

    产品描述 UHZ-57/S绳式磁性液位计是利用浮球、滑轮和钢索组合成的现场液位检测仪表,它的浮球放在被测量的罐或容器内… [了解更多]

上一篇:UHZ-57/DB电伴热型磁性液位计
下一篇:UQC
返回顶部